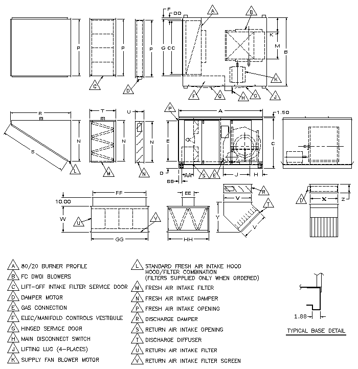
| tth-m 18M to 36M -- Arrangement H2 Down Discharge |
|
|
|
| Models |
A |
B |
C |
D |
E |
F |
G |
H |
J |
K |
M |
N |
P |
| 18M |
82 |
60 |
54 |
8.5 |
40.5 |
2 |
56 |
13 |
25 |
12.5 |
23 |
40.75 |
56.25 |
| 20M |
82 |
60 |
54 |
8.5 |
40.5 |
2 |
56 |
13 |
25 |
12.5 |
23 |
40.75 |
56.25 |
| 22M |
100 |
79 |
58 |
8.5 |
46.5 |
2 |
76 |
14.13 |
27.5 |
15.5 |
27.5 |
46.75 |
76.25 |
| 25M |
100 |
79 |
58 |
8.5 |
46.5 |
2 |
76 |
15.38 |
31.5 |
15.5 |
31.5 |
46.75 |
76.25 |
| 27M |
100 |
88 |
66 |
10.5 |
52.5 |
2 |
80 |
17 |
34.5 |
15.5 |
34.5 |
52.75 |
80.25 |
| 30M |
100 |
88 |
66 |
10.5 |
52.5 |
2 |
80 |
18.5 |
37 |
15.5 |
37 |
52.75 |
80.25 |
| 33M |
112 |
98 |
76 |
11.5 |
59.5 |
2 |
92 |
16.5 |
43.19 |
18.5 |
40 |
59.75 |
92.25 |
| 36M |
112 |
98 |
76 |
11.5 |
59.5 |
2 |
92 |
16.5 |
43.19 |
15.5 |
43 |
59.75 |
92.25 |
|
| Models |
R |
S |
T |
U |
V |
W |
X |
Y |
Z |
AA |
BB |
CC |
DD |
| 18M |
69.5 |
76 |
27 |
10 |
25.25 |
30 |
23.25 |
31.50 |
10 |
12.5 |
5.75 |
41.75 |
5.75 |
| 20M |
69.5 |
76 |
27 |
10 |
25.25 |
30 |
23.25 |
31.50 |
10 |
12.5 |
5.75 |
41.75 |
5.75 |
| 22M |
69.5 |
76 |
26 |
10 |
27.75 |
30 |
27.75 |
33.75 |
10 |
13.5 |
5.75 |
60.75 |
5.75 |
| 25M |
69.5 |
76 |
26 |
10 |
31.75 |
30 |
31.75 |
37.75 |
10 |
13.5 |
5.75 |
60.75 |
5.75 |
| 27M |
95.25 |
101 |
27 |
10 |
34.75 |
30 |
34.25 |
40 |
10 |
15.5 |
5.75 |
65.75 |
5.75 |
| 30M |
95.25 |
101 |
27 |
10 |
37.25 |
30 |
37.25 |
43 |
10 |
15.5 |
5.75 |
65.75 |
5.75 |
| 33M |
91.25 |
101 |
27.5 |
10 |
43.25 |
30 |
40.25 |
48 |
10 |
21.25 |
5.75 |
75.75 |
5.75 |
| 36M |
91.25 |
101 |
27.5 |
10 |
43.25 |
30 |
43.25 |
48 |
10 |
21.25 |
5.75 |
75.75 |
5.75 |
|
| Models |
EE |
FF |
GG |
HH |
FA Filter Qty |
FA Filter/Hood Qty |
RA Filter Qty |
| 18M |
12.75 |
42 |
56.25 |
32.75 |
(6) 20 x 25 & (3) 16 x 25 |
(6) 20 x 25 & (3) 16 x 25 |
(6) 20 x 25 & (3) 16 x 25 |
| 20M |
12.75 |
42 |
56.25 |
32.75 |
(6) 20 x 25 & (3) 16 x 25 |
(6) 20 x 25 & (3) 16 x 25 |
(6) 20 x 25 & (3) 16 x 25 |
| 22M |
13.75 |
61 |
76.25 |
38.75 |
(9) 20 x 25 & (3) 16 x 25 |
(9) 20 x 25 & (3) 16 x 25 |
(9) 20 x 25 & (3) 16 x 25 |
| 25M |
13.75 |
61 |
76.25 |
38.75 |
(9) 20 x 25 & (3) 16 x 25 |
(9) 20 x 25 & (3) 16 x 25 |
(9) 20 x 25 & (3) 16 x 25 |
| 27M |
15.75 |
66 |
80.25 |
44.75 |
(20) 20 x 25 |
(16) 20 x 25 |
(16) 20 x 25 |
| 30M |
15.75 |
66 |
80.25 |
44.75 |
(20) 20 x 25 |
(16) 20 x 25 |
(16) 20 x 25 |
| 33M |
21.5 |
76 |
92.25 |
50.75 |
(15) 20 x 25 & (10) 16 x 25 |
(12) 20 x 25 & (8) 16 x 25 |
(12) 20 x 25 & (8) 16 x 25 |
| 36M |
21.5 |
76 |
92.25 |
50.75 |
(15) 20 x 25 & (10) 16 x 25 |
(12) 20 x 25 & (8) 16 x 25 |
(12) 20 x 25 & (8) 16 x 25 |
|
|